町営住宅入居者募集情報
令和8年3月2日(月)から令和8年3月19日(木)まで、町営住宅の入居者の募集を行っております。
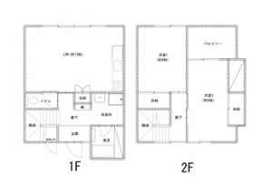
美屋団地
募集戸数●2戸(抽選)
物件構造●木造2階建 3LDK 72.86㎡
所 在 地●小鹿野町小鹿野1278番地(やすらぎの丘公園西約200m)
北扶桑ヶ原団
募集戸数●0戸
物件構造●木造2階建 3LDK 69.55㎡
所 在 地●小鹿野町下小鹿野2126番地1(信濃石信号西約300m
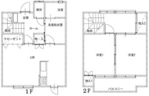
春日団地
募集戸数●2戸(抽選)
物件構造●木造2階建 2LDK 65.61㎡
所 在 地●小鹿野町小鹿野1911番地(小鹿野小学校西約100m)
笠原団地
募集戸数●5戸(抽選)
物件構造●木造2階建 2LDK 67.30㎡
所 在 地●小鹿野町小鹿野405番地(南裏通り伊豆沢入り口)
位置図

募集概要
募集期間●令和8年3月2日(月)~3月19日(木)
受付時間●8:30~17:15まで
※申込み・内見等は上記募集期間の受付時間内となります(土日祝日を除く)
家 賃●所得により決定
敷 金●家賃の3カ月分
駐車場●2,500円/台(月額)
入居資格
■現に同居し、又は同居する親族等がいること
■所得月額が扶養控除後15万8,000円以下であること
■自ら居住するための住宅を必要としていること
■申込者本人を含む同居世帯の全員が暴力団員でないこと
■国・地方税を滞納していないこと
| お問い合わせ |
小鹿野町役場 まちづくり推進課 TEL 0494-75-4196 |
|---|








